Мы используем куки-файлы. Соглашение об использовании
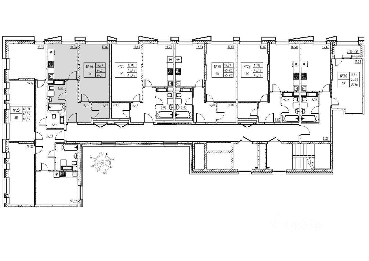
Квартира свободной планировки, 44,01 м²
Только на Циан

Продается квартира свободной планировки, 44,01 м²

Общая площадь44,01 м²
Жилая площадь17,9 м²
Площадь кухни10,9 м²
Этаж6 из 7
Год сдачи2026
ДомНе сдан
ОтделкаБез отделки
Участок на котором возводится дом расположен в уютном месте, примыкающем к городскому скверу, что создает ощущение легкости и комфорта при прогулках по придомовой территории. Современные детские площадки и зоны отдыха гармонично дополняют этот комфорт . Все детские площадки, придомовая территория, паркинг и входные группы оборудованы современными видеокамерами, что значительно увеличивает уровень безопасности и позволяет вам сохранять спокойствие, не беспокоясь лишний раз о возможных непредвиденных ситуациях. Приветливая и профессиональная атмосфера, а также сервис подчеркивают высокий уровень жизни, который мы предлагаем нашим жителям, создавая идеальные условия для вашего удобства и удовлетворения. Покидая квартиру номер 26 , расположенную на шестом этаже , перед выходом из дома, можно присесть на диванчик и обсудить с соседями сегодняшний вечер или прогулку на катере. Видеонаблюдение обеспечивает дополнительный контроль и защиту, создавая безопасную и комфортную среду для проживания. Проектом жилого комплекса предусмотрен комфортабельный подземный паркинг, который обеспечит вам максимальный уют и удобство. На современном лифте вы сможете без труда подняться с покупками напрямую на свой этаж прямо из паркинга, что особенно приятно в любое время года. В любой сезон вы сможете спуститься на теплую, чистую и безупречно безопасную парковку, что гарантирует вам спокойствие и комфорт в повседневной жизни. Строительство финансируется Сбер Банком. Реализация квартир по Договорам долевого участия. Эскроу счета являются гарантией безопасности сделки. Подходит для льготных ипотечных программ с господдержкой ("семейная ипотека", , "IT-ипотеки" и др.) . Объект аккредитован для приобретения в Сбербанке, ВТБ , в банке Финсервис.

О квартире

Тип жилья

Новостройка

Общая площадь

44,01 м²

Жилая площадь

17,9 м²

Площадь кухни

10,9 м²

Высота потолков

2,74 м

Санузел

1 совмещенный

Вид из окон

Во двор

Отделка

Без отделки

О доме

Количество лифтов

3 грузовых

Тип дома

Монолитно-кирпичный

Пандус

Есть

Понравилась квартира — узнайте о ней больше

Застройщик ответит на все вопросы

Отделка в ЖК

  • Без отделки

3D-тур

Посмотрите 3D-тур, чтобы оценить объект
Похоже на то, что вы ищете?

Акции в ЖК «БРУНО»

Узнайте про персональные условия и дополнительные скидки при покупке квартиры у застройщика
Ипотечный калькулятор
  • Базовая
  • Семейная
  • ИТ-ипотека
  • 20%
  • 30%
  • 40%
  • 50%
лет
  • 10 лет
  • 20 лет
  • 30 лет
Загружаем предложения от застройщика и банков
Корпус проверен наш.дом.рф
Обновлено 14 апреля 2026
  • Нет в реестре проблемных объектов
  • Застройщик не банкрот
  • Есть эскроу счёт
  • Актуальные фото стройки

Ещё квартиры в жилом комплексе

88 квартир в продаже · Сдача в 4 кв. 2026
ЗастройщикВЭМЗ-ЭСТЕЙТ
Строится: 1 дом в 1 ЖК
9 682 200 ₽
Цена за метр
220 000 ₽/м²
Условия сделки
долевое участие (214-ФЗ)