210 000 ₽/м²
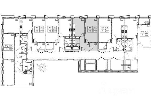
Участок на котором возводится дом расположен в уютном месте, примыкающем к городскому скверу, что создает ощущение легкости и комфорта при прогулках по придомовой территории. Современные детские площадки и зоны отдыха гармонично дополняют этот комфорт . Все детские площадки, придомовая территория, паркинг и входные группы оборудованы современными видеокамерами, что значительно увеличивает уровень безопасности и позволяет вам сохранять спокойствие, не беспокоясь лишний раз о возможных непредвиденных ситуациях. Приветливая и профессиональная атмосфера, а также сервис подчеркивают высокий уровень жизни, который мы предлагаем нашим жителям, создавая идеальные условия для вашего удобства и удовлетворения. Покидая квартиру номер 52 , расположенную на четвортом этаже , перед выходом из дома, можно присесть на диванчик и обсудить с соседями сегодняшний вечер или прогулку на катере. Видеонаблюдение обеспечивает дополнительный контроль и защиту, создавая безопасную и комфортную среду для проживания. Проектом жилого комплекса предусмотрен комфортабельный подземный паркинг, который обеспечит вам максимальный уют и удобство. На современном лифте вы сможете без труда подняться с покупками напрямую на свой этаж прямо из паркинга, что особенно приятно в любое время года. В любой сезон вы сможете спуститься на теплую, чистую и безупречно безопасную парковку, что гарантирует вам спокойствие и комфорт в повседневной жизни. Строительство финансируется Сбер Банком. Реализация квартир по Договорам долевого участия. Эскроу счета являются гарантией безопасности сделки. Подходит для льготных ипотечных программ с господдержкой ("семейная ипотека", , "IT-ипотеки" и др.) . Объект аккредитован для приобретения в Сбербанке, ВТБ , в банке Финсервис.















































































